WORK
Residential House
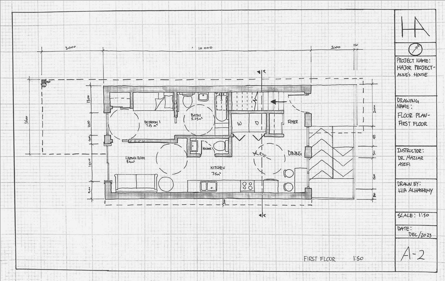
LANEWAY HOUSE
RESIDENTIAL MODEL
RESIDENTIAL DETAILING
PERSONAL ARTWORK
Contact
HIA ALHASHIMY
WORK
Residential House
LANEWAY HOUSE
RESIDENTIAL MODEL
RESIDENTIAL DETAILING
PERSONAL ARTWORK
Contact
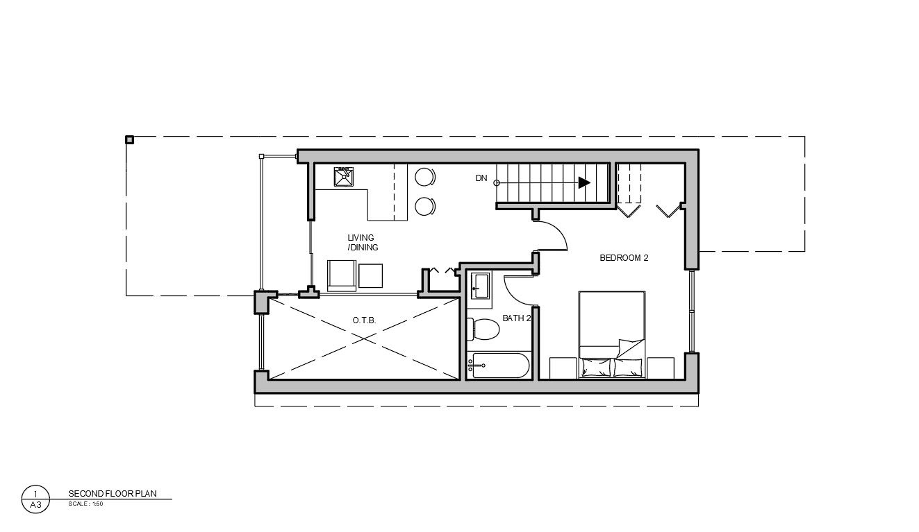
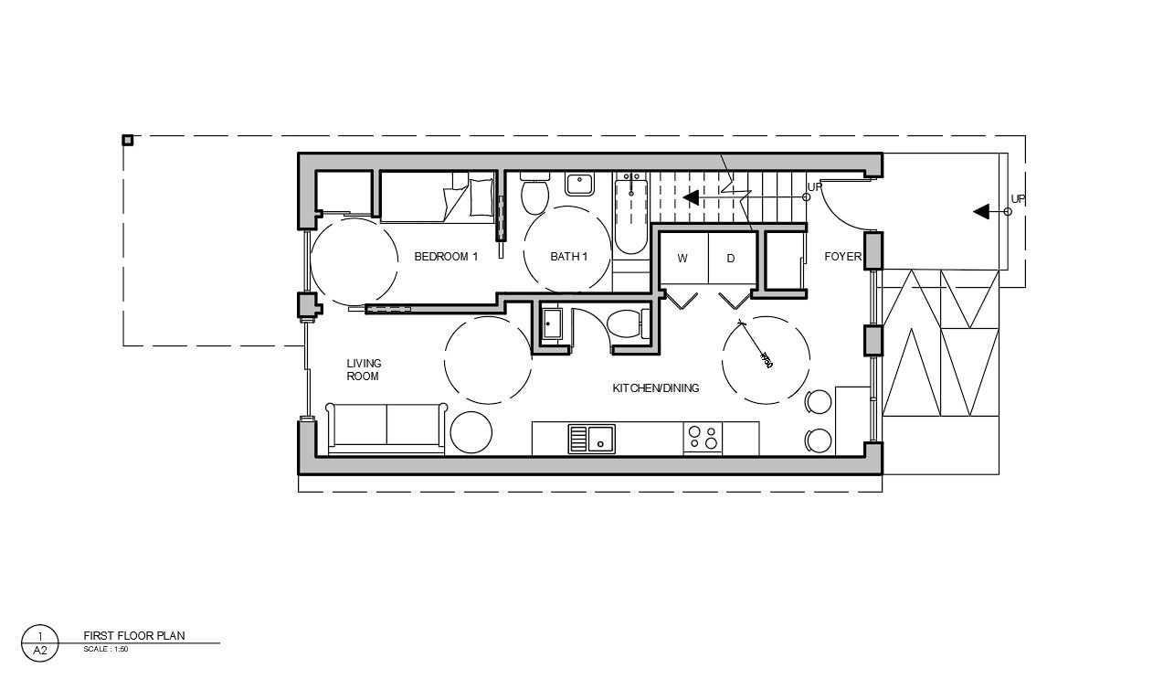
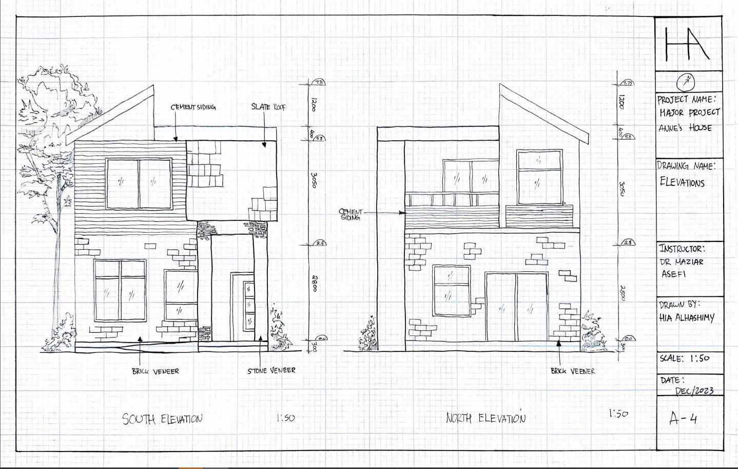
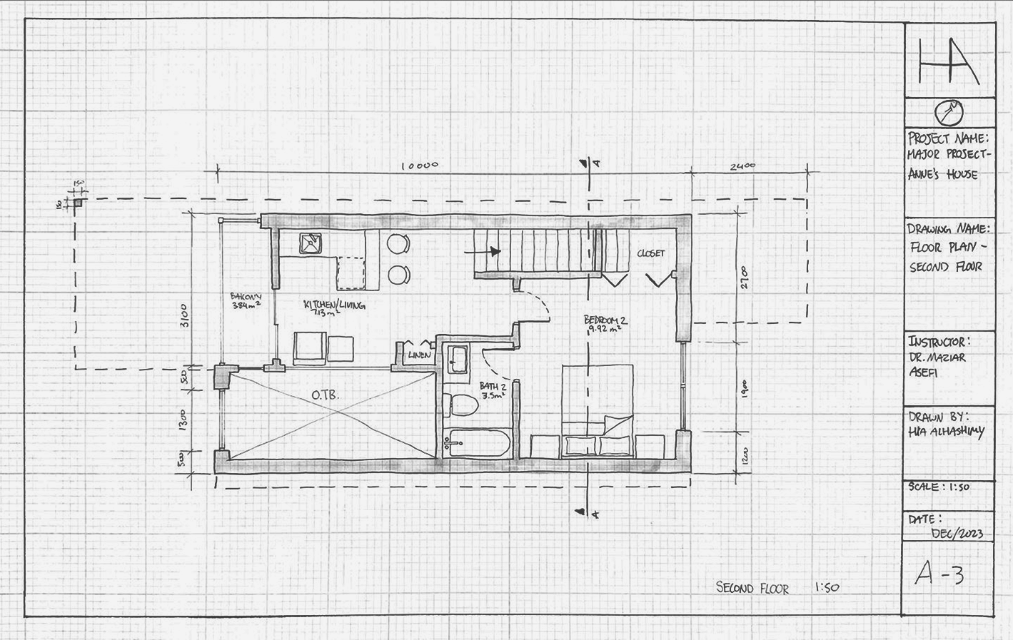
LANEWAY HOUSE
Conceptualized and designed an accessible Laneway house for a senior resident and the caretaker.
Initial Drawing of First Floor
Initial Drawing of Second Floor
↑
Back to Top